Zajadacz EVI

OBO BSKP 0406 Brandschutzkanal I30

f.Photovoltaik 40x60x1000 BET gr 7214700

Artikel
3803427
Lieferanten Typ
BSKP 0406
Lieferanten Artikel
7214700

Beschreibung

Brandschutzkanal PYROLINE® Sun PV
für direkte und abgehängte Montage
Der PYROLINE® Sun PV ist gemäß VDE-Anwendungsregel zur brandsicheren Verlegung von PV-DC-Leitungen geeignet. Seine nicht leitende Oberfläche sorgt auch im Brandfall für einen Schutz vor gefährlichen Berührspannungen. Darüber hinaus erfüllt der Kanal die Forderungen als I-Kanal gemäß DIN 4102 Teil 11 für die Kabelinstallation in Flucht- und Rettungswegen. Die Installation des Brandschutzkanals kann direkt an der Wand oder unter der Decke erfolgen. Mit passenden Verbindungsbeschlägen ist auch eine abgehängte Montage möglich. Der Kanal besteht aus wasser- und frostbeständigen Glasfaserleichtbeton-Brandschutzplatten (nicht brennbar, Baustoffklasse A1), somit kann er auch außerhalb des Gebäudes montiert werden.

Systemvorteile:
· Schutz von Fluchtwegen vor Kabelbrand
· Schützt Bewohner und Einsatzkräfte vor gefährlichen Berührspannungen
· Entspricht den Forderungen der VDE-Anwendungsregel AR 7100
· Nicht leitende Oberfläche
· Verbindungselemente für abgehängte Variante erhältlich
· Formteile flexibel herstellbar
· Sehr geringe Außenabmessungen
· Innen und außen anwendbar
· Streich- und tapezierbar für unauffällige Integration im Gebäude
Brandschutzkanal
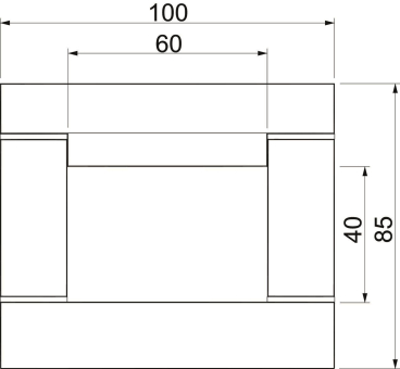
Maße (HxBxL): 40/80x60/100x1000 mm

Hersteller-Seite

Artikeleigenschaften

Zolltarif-Nr.
68109900
Ursprungs-Land
DE
WEEE-Land
DE
WEEE-Nummer
64419409
Feuerwiderstandsklasse I - Installationskanal
30
Länge
1000 mm
Anzahl der flammbeständigen Seiten
4
Isoliermaterial
Glasfaser-Leichtbeton
Ummantelung
ohne
Farbe
grau
Trennwände möglich
Deckelbefestigung
verschrauben
ETIM-Klasse
Brandschutzkanal

Artikelinformationen vom Hersteller

Zubehör

Oft zusammen gekauft