Zajadacz EVI

OBO BSK 091016 Brandschutzkanal I90/E30

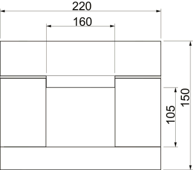
105x160 grau 7215162

Artikel
2176497
Lieferanten Typ
BSK 091016
Lieferanten Artikel
7215162

Beschreibung

PYROLINE® Con D Brandschutzkanal für direkte
Wand- und Deckenmontage
BSK Brandschutzkanal I90 und E30
Brandschutzkanal I90/E30, gem. DIN 4102 Teil 11 und Teil 12, inkl. 12 St. Senkschrauben und 3x1 m Dichtungsstreifen
Glasfaserleichtbeton
Innenmaße: 105x160 mm
Außenmaße: 150x220 mm
Lieferlänge: 1000 mm

Hersteller-Seite

Artikeleigenschaften

Zolltarif-Nr.
68109100
ISO 50001 Zertifizierung
ISO 14001 Zertifizierung
Ursprungs-Land
DE
WEEE-Land
DE
WEEE-Nummer
64419409
Länge
1000 mm
Anzahl der flammbeständigen Seiten
3
Isoliermaterial
Glasfaser-Leichtbeton
Intumeszierende Innenauskleidung
Ummantelung
ohne
Farbe
grau
Trennwände möglich
Deckelbefestigung
verschrauben
ETIM-Klasse
Brandschutzkanal

Artikelinformationen vom Hersteller

Zubehör

Oft zusammen gekauft