Zajadacz EVI

OBO BSKH 091016 Brandschutzkanal I90/E30

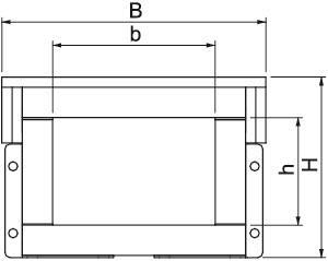
abgehängt 4-seitig 105x160 grau 7215186

Artikel
4918563
Lieferanten Typ
BSKH 091016
Lieferanten Artikel
7215186

Beschreibung

Brandschutzkanal aus wasser- und frostbeständigen Glasfaserleichtbeton der Baustoffklasse A1 gemäß EN 13501-1 zur brandsicheren Verlegung von Kabeln in Flucht- und Rettungswegen und zum Funktionserhalt sicherheitsrelevanter Anlagen. Klassifizierung I90 als I-Kanal gemäß DIN 4102 Teil 11 und Klassifizierung E30 als E-Kanal gemäß DIN 4102 Teil 12. Montage des Kanals auf Wandauslegern oder als Deckenmontage mit Hängestielen und Auslegern bzw. auf einem mit Gewindestangen abgehängten U-Querprofil. Fertig montierte Verbindungsbeschläge sorgen für eine schnelle Montage vor Ort, lose aufgelegte Deckel für eine schnelle Revision und Nachbelegung. Brandschutzkanal mit Deckel und vormontierten Verbindungsbeschlägen, Verbindungsschrauben, Dichtungsstreifen.

Hersteller-Seite

Artikeleigenschaften

Zolltarif-Nr.
38160090
ISO 50001 Zertifizierung
ISO 14001 Zertifizierung
Ursprungs-Land
DE
WEEE-Land
DE
WEEE-Nummer
64419409
Feuerwiderstandsklasse I - Installationskanal
90
Feuerwiderstandsklasse E - Funktionserhalt
30
Länge
1000 mm
Anzahl der beflammbaren Seiten
4
Werkstoff des Isoliermaterials
Glasfaser-Leichtbeton
Ummantelung
ohne
Farbe
grau
Trennwände möglich
Deckelbefestigung
lose
ETIM-Klasse
Brandschutzkanal

Artikelinformationen vom Hersteller

Zubehör

Oft zusammen gekauft