Zajadacz EVI

OBO BSK-E091016 Endstück f.BSK I90/E30

105x160 grau 7215256

Artikel
2940519
Lieferanten Typ
BSK-E091016
Lieferanten Artikel
7215256

Beschreibung

Endstück für Brandschutzkanal PYROLINE® Con D BSK I90/E30 bestehend aus wasser- und frostbeständigen Glasfaserleichtbeton zum Verschluss der Kanalenden. Inklusive Senkkopfschrauben und aufgeklebten Dichtungsstreifen.

Hersteller-Seite

Artikeleigenschaften

Zolltarif-Nr.
38160090
Ursprungs-Land
DE
WEEE-Land
DE
WEEE-Nummer
64419409
Ausführung
links/rechts
Feuerwiderstandsklasse I - Installationskanal
90
Feuerwiderstandsklasse E - Funktionserhalt
30
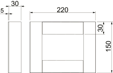
Außenhöhe
150 mm
Außenbreite
220 mm
Anzahl der flammbeständigen Seiten
3
Isoliermaterial
Glasfaser-Leichtbeton
Ummantelung
ohne
Farbe
grau
ETIM-Klasse
Endstück für Brandschutzkanal

Artikelinformationen vom Hersteller

Oft zusammen gekauft