Zajadacz EVI

OBO BSKH-E090511 Endstück f.BSKH I90/E30

50x110 grau 7215592

Artikel
2940544
Lieferanten Typ
BSKH-E090511
Lieferanten Artikel
7215592

Beschreibung

Endstück für Brandschutzkanal PYROLINE® Con S BSK bestehend aus wasser- und frostbeständigen Glasfaserleichtbeton zum Verschluss der Kanalenden. Inklusive Senkkopfschrauben und aufgeklebten Dichtungsstreifen.

Hersteller-Seite

Artikeleigenschaften

Zolltarif-Nr.
38160090
ISO 50001 Zertifizierung
ISO 14001 Zertifizierung
Ursprungs-Land
DE
WEEE-Land
DE
WEEE-Nummer
64419409
Ausführung
links/rechts
Feuerwiderstandsklasse I - Installationskanal
90
Feuerwiderstandsklasse E - Funktionserhalt
30
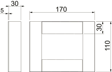
Außenhöhe
110 mm
Außenbreite
170 mm
Anzahl der flammbeständigen Seiten
4
Isoliermaterial
Glasfaser-Leichtbeton
Ummantelung
ohne
Farbe
grau
ETIM-Klasse
Endstück für Brandschutzkanal

Artikelinformationen vom Hersteller

Oft zusammen gekauft