Zajadacz EVI

GSAB MP Normschrank 3S1300 PVC 3M1300

6mm

Artikel
4193067
Lieferanten Typ
3M1300
Lieferanten Artikel
3M1300

Beschreibung

Montageplatte für Normschrank 3S1300, PVC 6mm. Die perfekte Basis: GSAB Montageplatten für flexible Bestückung. Technische Details: aus Kunststoff. Passgenau für GSAB Normschränke.

Hersteller-Seite

Artikeleigenschaften

Zolltarif-Nr.
85381000
Ursprungs-Land
DE
Werkstoff
Kunststoff
Oberflächenschutz
unbehandelt
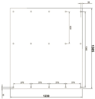
Höhe
1230 mm
Breite
1385 mm
Lochung
ETIM-Klasse
Montageplatte für Verteilergehäuse

Oft zusammen gekauft