Zajadacz EVI

GSAB Wandlermessung 09.W630.AR-ZWS-4

AVACON 630 A NA-Schutz n.VDE-AR-N 4105

Artikel
5828449
Lieferanten Typ
09.W630.AR-ZWS-4
Lieferanten Artikel
09.W630.AR-ZWS-4

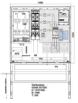
Beschreibung

Wandlermessung AVACON 630A Volleinsp. mit NA-Schutz bis 300kVA mit 4-teiliger ZWP inkl. Sockel

Artikeleigenschaften

Zolltarif-Nr.
85371098
Ursprungs-Land
DE

Oft zusammen gekauft