Zajadacz EVI

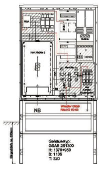
GSAB Wandlermessung 41.W250.88S-Dir

Stromnetz Hamburg 250A Sockel , HAK NH 2

Artikel
5182243
Lieferanten Typ
41.W250.88S-Dir
Lieferanten Artikel
41.W250.88S-Dir

Beschreibung

Wandlermessung Stromnetz Hamburg 250 A incl. Sockel , HAK NH 2 eingeb.., zusätzl. Direktmessung

Artikeleigenschaften

Zolltarif-Nr.
85371098
Ursprungs-Land
DE

Oft zusammen gekauft