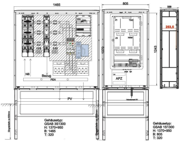
Zajadacz EVI

GSAB Wandlermessung e 09.W400.AR-ZWS-4Ei

on AVACON 400 A NA-Schutz n.VDE-AR-N

Artikel
5828447
Lieferanten Typ
09.W400.AR-ZWS-4Ei
Lieferanten Artikel
09.W400.AR-ZWS-4Ei

Beschreibung

Wandlermessung AVACON 400A Überschusseinsp. mit NA-Schutz bis 200kVA inkl. Sockel

Artikeleigenschaften

Zolltarif-Nr.
85371098
Ursprungs-Land
DE

Oft zusammen gekauft