Zajadacz EVI

Hager Leitungsführungs- LFS300450VERZ

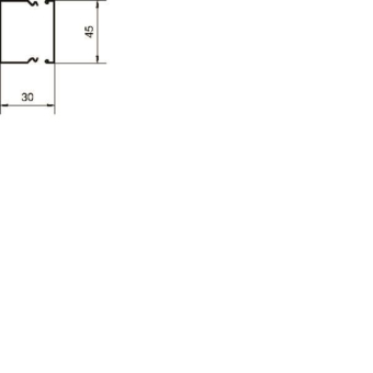
kanal Stahlblech 30x45mm verzinkt

Artikel
213201
Lieferanten Typ
LFS300450VERZ
Lieferanten Artikel
LFS300450VERZ

Beschreibung

LFS Elektro-Installationskanal-System aus Stahlblech
Kanalhöhen 20 und 30 mm
Verzinkt
Farbe: Stahlblech verzinkt
Maße (HxB): 30x45 mm

Hersteller-Seite

Artikeleigenschaften

Zolltarif-Nr.
73269098
EcoVadis Bewertung
Teilnahme/Konformität UNGC
ISO 14001 Zertifizierung
Ursprungs-Land
DE
WEEE-Land
DE
WEEE-Nummer
23692311
Höhe
30 mm
Breite
45 mm
Länge
2000 mm
Nutzbarer Querschnitt
970 qmm
Werkstoff
Stahl
Werkstoffgüte
sonstige
Halogenfrei
Antibakterielle Behandlung
Oberflächenschutz
bandverzinkt
Geeignet für Funktionserhalt
Farbe
Zink
Transparent
Anzahl der festen Trennwände
0
Anzahl der steckbaren Trennwände
0
Befestigungsart
Bodenlochung
Ausführung Deckel
lose
Mit Kabelhalteklammer
Mit Schutzfolie
Mit Kanalverbinder
Lieferung auf Rolle
Vorprägungen
Schutzart (IP)
IP30
Schlagfestigkeit
IK08
Einsatztemperatur
-5 - 90 °C
ETIM-Klasse
Leitungsführungskanal

Zubehör

Oft zusammen gekauft