Zajadacz EVI

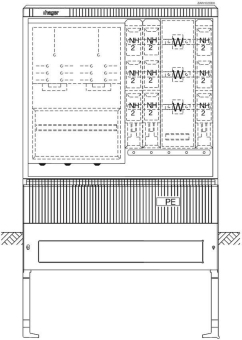
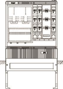
Hager Wandler-u.Messschrank ZAW102DD8

universN bis 250A LEW/Bayernwerke AG

Artikel
4540953
Lieferanten Typ
ZAW102DD8
Lieferanten Artikel
ZAW102DD8

Beschreibung

Wandler- und Messschrank, universN, bis 250 A, LEW / Bayernwerke AG

Hersteller-Seite

Artikeleigenschaften

Zolltarif-Nr.
85371098
Reach
2025-10-11 - Ja
Ursprungs-Land
DE
WEEE-Land
DE
WEEE-Nummer
23692311
Bemessungsstrom
200 A
Anzahl der Zählerplätze
0
Netzseitiger Anschlussraum
mit Sammelschiene 4-polig
Montageart
Aufputz
Werkstoff
Kunststoff
Farbe
grau
RAL-Nummer
7035
Anzahl der Verteilerreihen
6
Anzahl der Felder
4
Mit Montageplatte
Schutzart (IP)
IP44
Breite
1110 mm
Höhe
1005 mm
Tiefe
315 mm
Einbaubreite
1110 mm
Einbauhöhe
1005 mm
Einbautiefe
315 mm
ETIM-Klasse
Zähler-Komplettschrank

Zubehör

Oft zusammen gekauft