Hager Zähleranschlusssäule ZAS207BD24A

universZ 2ZP 3.HZ 4polig+APZ

Artikel
5362337
Lieferanten Typ
ZAS207BD24A
Lieferanten Artikel
ZAS207BD24A

Beschreibung

Zähleranschlusssäule 207, universZ, 2 ZP, 3Punkt, 4-pol, Leerfeld, Basis, APZ.Zähleranschlusssäule, Schutzart IP 44, als Basissäule inklusiv Eingrabsockel, aus glasfaserverstärktes Polyester FS 833.5 nach DIN EN 14598. Die Zähleranschlusssäule erfüllt die Anforderungen der DIN VDE 0603-1 (VDE 0603-1):2017-06 in Verbindung mit der DIN VDE 0603-2-1 (VDE 0603-2-1):2017-06. Weiterhin ist die Anlage basierend auf den geltenden Anwendungsrichtlinien der VDE-AR-N 4100:2019-04 inkl. der zugehörigen Berichtigung VDE-AR-N 4100 Ber 1:2019 aufgebaut. Durch Zusatzbauteile wird die Basissäule zu einer anschlussfertigen Zähleranschlusssäule des entsprechenden VNB ausgebaut. Profiliertes Gehäuse im Rippendesign. Tür mit Öffnungswinkel 180 Grad bei freiem Stand und 90 Grad bei angereihten Gehäusen. Rechte Tür ist aushängbar. Schließung mit Schwenkhebel und Drei-Punkt-Basküleverschluss mit 1 bzw. 2 Profilhalbzylindern. Eingebauter Zylinder unten mit gleichschließender Serie. Ein zweiter Schließzylinder (z.B. aus VNB-Schließanlage) kann oben nach Entfernen des Vierkantverschlusses eingebaut werden. Wenn kein zweiter Profilhalbzylinder eingebaut wird, muss die zweite obere Öffnung mit einem Blindverschluss bestückt werden. Die Belüftung erfolgt über labyrinthartig ausgebildete Lüftungskanäle, verhindert das Eindringen von Fremdkörpern und ist stochersicher. Zähleranschlusssäulen sind gebaut nach technischer Richtlinie: Anschlussschränke im Freien/Anschluss von ortsfesten Schalt- und Steuerschränken und Zähleranschlusssäulen an das Niederspannungsnetz des VNB. Der Einbau besteht aus schutzisolierten Zählerfeldern DIN 43870 (Funktionsflächen) für Zähler. Zählerplätze sind vorgerichtet für eine IP54 Abdeckung. Eingrabsockel und Zähleranschlusssäule bilden eine Einheit. Ein Bodenrost ist empfohlen. Zur Betauungsvermeidung ist der Sockel bis zur Höhe der Kabelbefestigungsschiene innen mit Sockelfüller aufzufüllen.

Hersteller-Seite

Artikeleigenschaften

Zolltarif-Nr.
85371098
Ursprungs-Land
PL
WEEE-Land
DE
WEEE-Nummer
23692311
Bemessungsstrom
63 A
Ausführung
2-stöckig
Anzahl der Zählerplätze
2
Anzahl der TSG-Plätze
0
Unterer Anschlussraum
mit Sammelschiene 4-polig
Montageart
sonstige
Werkstoff
Kunststoff
Farbe
grau
RAL-Nummer
7035
Anzahl der Verteilerreihen
7
Anzahl der Felder
3
Mit Montageplatte
Schutzart (IP)
IP44
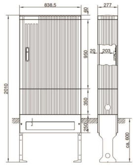
Breite
839 mm
Höhe
2010 mm
Tiefe
277 mm
Einbaubreite
839 mm
Einbauhöhe
2010 mm
Einbautiefe
277 mm
ETIM-Klasse
Zähler-Komplettschrank