Zajadacz EVI

Hensel Ladeverteiler f.8 Mi EV 22kW 8010

Ladepunkte 22kW

Artikel
7145703
Lieferanten Typ
Mi EV 22kW 8010
Lieferanten Artikel
65000159

Beschreibung

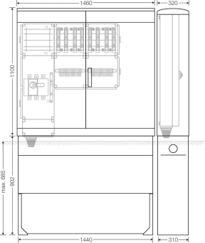
Mi EV 22 kW 8000/8010 für 8 Ladepunkte
Einspeisung/Leitungsschutz, IP54

· Anschlussfertig
· Vorbereitet zum Anschluss von 8 Ladepunkten á 22 kW
· Einspeisung: Anschluss unten - bis 240 mm2, Cu
· Ladepunkte: Anschluss unten - 10 mm2, Cu
· Stromkreise für Ladepunkte inkl. integriertem D02 Sicherungs-Lasttrennschalter
· Abmessungen HxBxT: 988x1300x364 mm

Bemessungsspannung Un = 400 a.c.
Bemessungsisolationsspannung Ui = 400 a.c.
Bemessungsstoßspannungsfestigkeit Ump = 4 kV
Bemessungsstrom der
Schaltgerätekombination InA = 320 A
Bemessungsstrom eines Stromkreises Inc = 32 A

Hersteller-Seite

Artikeleigenschaften

Zolltarif-Nr.
85371098
Ursprungs-Land
DE
WEEE-Land
DE
WEEE-Nummer
52801221
Spannung
400 V
Werkstoff
Kunststoff
Oberflächenbehandlung
sonstige
Schutzart (IP)
IP54
Farbe
sonstige
Breite
1460 mm
Höhe
1100 mm
Tiefe
320 mm
Gewicht
37,57 kg
ETIM-Klasse
Verteilerschrank für Energieversorgung

Zubehör

Oft zusammen gekauft