Zajadacz EVI

Hensel Mi PV 7355

PV-Wechselrichter-Sammler 350kVA 3-phe

Artikel
7012160
Lieferanten Typ
Mi PV 7355
Lieferanten Artikel
20001584

Beschreibung

PV-Wechselrichter-Sammler Bemessungsleistung 350 kVA,
Mi PV 7355, 3-phasige Wechselrichter

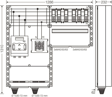
Isolierstoffgekapselte Niederspannungs-Schaltgerätekombination in Kastenbauform nach IEC 61439 -2 für Wandaufbau. Gehäuse müssen zur Montage im Freien geeignet sein, es sind die klimatischen Ein- und Auswirkungen auf die Betriebsmittel zu beachten. Kastenunterteile und -deckel aus schlagfestem Polycarbonat, halogen- und silikonfrei Farbe RAL 7035, Deckel transparent mit Schnellverschlüssen für Werkzeugbetätigung. Brennverhalten gem. IEC 60695-2-11 Glühdrahtprüfung + 960 °C. Maximale Wasseraufnahme von 10 mg nach DIN 53473. Schutzmaßnahme: Schutzisoliert (Schutzklasse II). Fabrikat: HENSEL Mi-Verteiler. Photovoltaik Wechselrichter-Sammler 350 kVA zum Anschluss von 6 Stück Wechselrichtern 3-phasig. Schutzart: IP54 nach IEC 60529. Abmessungen HxBxT 1335x1286x214 mm

Hersteller-Seite

Artikeleigenschaften

Zolltarif-Nr.
85371098
Ursprungs-Land
DE
WEEE-Land
DE
WEEE-Nummer
52801221
Ausstattung des Sicherungslasttrenngehäuses
mit Sicherungslasttrennschalter
Polzahl
3
Bemessungsbetriebsstrom Ie
500 A
Max. Bemessungsbetriebsspannung Ue bei AC
690 V
Bemessungsisolationsspannung Ui
800 V
Baugröße der Sicherungseinsätze
NH000
Mit Sicherungsüberwachung
Gehäusebreite
1286 mm
Gehäusetiefe
276 mm
Gehäusehöhe
1335 mm
Schutzart (IP)
IP54
ETIM-Klasse
Sicherungslasttrenngehäuse

Oft zusammen gekauft