Zajadacz EVI

NIED Hängestiel HU 6040/600 ER

Artikel
2395398
Lieferanten Typ
HU 6040/600 E3
Lieferanten Artikel
HU6040/600E3

Beschreibung

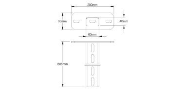
Hängestiel, 3-seitig durchgehend gelochtes U-Profil mit angeschweißter Kopfplatte, System HU 6040/..., für Ausleger zur ein-/zwei- und dreiseitigen Verlegung, um die Verformung des Hängestielprofils bei der Montage von Ausleger zu verhindern, ist aus statischen Gründen das Hängestiel-Distanzprofil HDS 60.40 E3 mit Sechskantschraube zu berücksichtigen, bei einer einseitigen Befestigung des Auslegers am Hängestielprofil ist bevorzugt die geschlossene Seite des Auslegers fluchtend mit dem Profilsteg des Hängestiels anzubringen. Aus statischen Gründen und um ein problemloses Aufsetzen der Schutzkappe zu ermöglichen, muss der Ausleger im Abstand von x=50 mm (Auslegerunterkante bis Hängestielende), oberhalb des Hängestielendes montiert werden. VDE zertifiziert! für Ausleger : KTAM... E3 KTA... E3 KTAS... E3 Abmessungen (ca. Maße) Kopfplatte L x B x t : 200 x 80 x 6 mm Befestigungslochung : 13 x 28 mm mittiger Abstand : 152 mm U-Profil : 40 x 60 x 40 mm Materialstärke t : 4 mm dreiseitige Profillochung, einreihig : 13 x 40 mm mittiger Abstand : 50 mm Gesamtlänge L : 606 mm Werkstoff : Edelstahl, Werkstoff Nr. 1.4301, AISI 304

Hersteller-Seite

Artikeleigenschaften

Zolltarif-Nr.
73089059
Ursprungs-Land
DE
Länge
606 mm
Profilbreite
40 mm
Profilhöhe
60 mm
Ausführung
U-Profil
Tragfähigkeit
6 kN
Geeignet für Funktionserhalt
Werkstoff
rostfreier Stahl
Rostfreier Stahl, gebeizt
Werkstoffgüte
Edelstahl 304 (V2A)
Oberflächenschutz
sonstige
Einsatztemperatur
-20 - 120 °C
Gewicht
2,5496 kg
ETIM-Klasse
Hängestiel für Kabeltragsystem

Oft zusammen gekauft