Zajadacz EVI

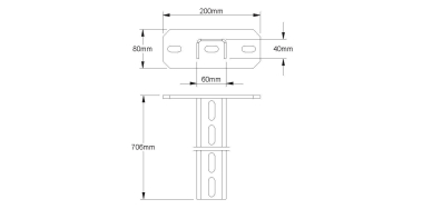
NIED Hängestiel HU6040/700 HU 6040/700

U -Profil

Artikel
2358037
Lieferanten Typ
HU 6040/700
Lieferanten Artikel
HU6040/700

Beschreibung

Hängestiel System HU 6040

Tauchfeuerverzinkt nach DIN EN ISO 1461.
Hängestiel mit angeschweißter Kopfplatte und 3-seitig,
durchgehend perforierter U-Profil zur Möglichkeit der
3-seitigen Anbringung der Wandausleger KTAL... und KTA...
Funktionserhalt E30/E90 gemäß DIN 4102-12 für Kabelrinnen RLVC 60 und Gitterrinnen MTC 54.
HU 6040/200-HU6040/1000: zur Verwendung im Funktionserhalt/Musterleitungsanlagenrichtlinie MLAR; abP bzw. gutachterliche Stellungnahme beachten.

Hersteller-Seite

Artikeleigenschaften

Zolltarif-Nr.
73089059
Ursprungs-Land
DE
Länge
706 mm
Profilbreite
40 mm
Profilhöhe
60 mm
Ausführung
U-Profil
Tragfähigkeit
6 kN
Geeignet für Funktionserhalt
Werkstoff
Stahl
Rostfreier Stahl, gebeizt
Werkstoffgüte
sonstige
Oberflächenschutz
feuerverzinkt
Einsatztemperatur
-20 - 120 °C
Gewicht
3,12543 kg
ETIM-Klasse
Hängestiel für Kabeltragsystem

Oft zusammen gekauft