Zajadacz EVI

OBO BSKD09-E0506 Endstück f.BSKD09-K0506

50x60 grau 7215261

Artikel
6917740
Lieferanten Typ
BSKD09-E0506
Lieferanten Artikel
7215261

Beschreibung

Endstück I90 und E30

Endstück für Brandschutzkanal PYROLINE® Con D I90/E30 bestehend aus wasser- und frostbeständigen Glasfaserleichtbeton zum Verschluss der Kanalenden. Inklusive Senkkopfschrauben und aufgeklebten Dichtungsstreifen.

Hersteller-Seite

Artikeleigenschaften

Zolltarif-Nr.
68109100
ISO 50001 Zertifizierung
ISO 14001 Zertifizierung
Ursprungs-Land
DE
WEEE-Land
DE
WEEE-Nummer
64419409
Ausführung
links/rechts
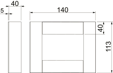
Außenhöhe
113 mm
Außenbreite
140 mm
Anzahl der flammbeständigen Seiten
3
Isoliermaterial
Glasfaser-Leichtbeton
Ummantelung
ohne
Farbe
grau
ETIM-Klasse
Endstück für Brandschutzkanal

Artikelinformationen vom Hersteller

Oft zusammen gekauft