Zajadacz EVI

OBO BSKD09-E0511 Endstück f.BSKD09-K0511

50x110 grau 7215263

Artikel
6917741
Lieferanten Typ
BSKD09-E0511
Lieferanten Artikel
7215263

Beschreibung

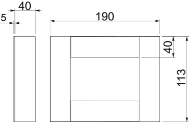
Endstück I90 und E30

Endstück für Brandschutzkanal PYROLINE® Con D I90/E30 bestehend aus wasser- und frostbeständigen Glasfaserleichtbeton zum Verschluss der Kanalenden. Inklusive Senkkopfschrauben und aufgeklebten Dichtungsstreifen.

Hersteller-Seite

Artikeleigenschaften

Zolltarif-Nr.
68109100
ISO 50001 Zertifizierung
ISO 14001 Zertifizierung
Ursprungs-Land
DE
WEEE-Land
DE
WEEE-Nummer
64419409
Ausführung
links/rechts
Außenhöhe
113 mm
Außenbreite
190 mm
Anzahl der flammbeständigen Seiten
3
Isoliermaterial
Glasfaser-Leichtbeton
Ummantelung
ohne
Farbe
grau
ETIM-Klasse
Endstück für Brandschutzkanal

Artikelinformationen vom Hersteller

Oft zusammen gekauft