Zajadacz EVI

OBO BSKD09-K0521 Brandschutzkanal

I90/E30 Direktmontage 7215141

Artikel
6917713
Lieferanten Typ
BSKD09-K0521
Lieferanten Artikel
7215141

Beschreibung

BSK Brandschutzkanal I90 und E30

Brandschutzkanal aus wasser- und frostbeständigen Glasfaserleichtbeton der Baustoffklasse A1 gemäß EN 13501-1 zur brandsicheren Verlegung von Kabeln in Flucht- und Rettungswegen und zum Funktionserhalt sicherheitsrelevanter Anlagen. Klassifizierung I90 als I-Kanal gemäß DIN 4102 Teil 11 und Klassifizierung E30 als E-Kanal gemäß DIN 4102 Teil 12. Montage des Kanals direkt an Wänden oder unter Decken. Inklusive Senkkopfschrauben und Dichtungsstreifen.

Hersteller-Seite

Artikeleigenschaften

Zolltarif-Nr.
68109100
ISO 50001 Zertifizierung
ISO 14001 Zertifizierung
Ursprungs-Land
DE
WEEE-Land
DE
WEEE-Nummer
64419409
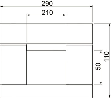
Außenhöhe
110 mm
Außenbreite
290 mm
Länge
1000 mm
Nutzbarer Querschnitt
10500 qmm
Anzahl der flammbeständigen Seiten
3
Isoliermaterial
Glasfaser-Leichtbeton
Intumeszierende Innenauskleidung
Ummantelung
ohne
Farbe
grau
Trennwände möglich
Deckelbefestigung
verschrauben
ETIM-Klasse
Brandschutzkanal

Artikelinformationen vom Hersteller

Zubehör

Oft zusammen gekauft