Zajadacz EVI

OBO BSKH09-B1021 Bogen 90°

f.BSKH09-K1021 105x210 grau 7215616

Artikel
6917723
Lieferanten Typ
BSKH09-B1021
Lieferanten Artikel
7215616

Beschreibung

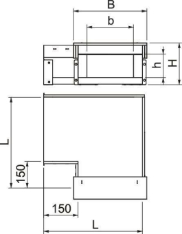
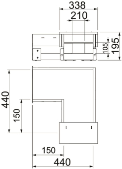
90° Bogen für Brandschutzkanal PYROLINE® Con S, Typ BSKH09-K1021 bestehend aus wasser- und frostbeständigen Glasfaserleichtbeton zur Herstellung von horizontalen Richtungsänderungen im Kanalverlauf. Fertig montierte Verbindungsbeschläge sorgen für eine schnelle Montage vor Ort, lose aufgelegte Deckel für eine schnelle Revision und Nachbelegung. Inklusive Verbindungsschrauben und Dichtungsstreifen.

Hersteller-Seite

Artikeleigenschaften

Zolltarif-Nr.
68109100
ISO 50001 Zertifizierung
ISO 14001 Zertifizierung
Ursprungs-Land
DE
WEEE-Land
DE
WEEE-Nummer
64419409
Winkel
90 °
Innenhöhe
195 mm
Innenbreite
338 mm
Anzahl der flammbeständigen Seiten
4
Isoliermaterial
Glasfaser-Leichtbeton
Ummantelung
ohne
Farbe
grau
Trennwände möglich
ETIM-Klasse
Flachwinkel für Brandschutzkanal

Artikelinformationen vom Hersteller

Oft zusammen gekauft