Zajadacz EVI

OBO BSKH09-E0506 Endstück f.BSKH09-K0506

50x60 grau 7215591

Artikel
6917729
Lieferanten Typ
BSKH09-E0506
Lieferanten Artikel
7215591

Beschreibung

Endstück für Brandschutzkanal PYROLINE® Con S, Typ BSKH09-K0506 bestehend aus wasser- und frostbeständigen Glasfaserleichtbeton zum Verschluss der Kanalenden. Inklusive Senkkopfschrauben und aufgeklebten Dichtungsstreifen.

Hersteller-Seite

Artikeleigenschaften

Zolltarif-Nr.
68109100
ISO 50001 Zertifizierung
ISO 14001 Zertifizierung
Ursprungs-Land
DE
WEEE-Land
DE
WEEE-Nummer
64419409
Ausführung
links/rechts
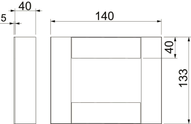
Außenhöhe
133 mm
Außenbreite
140 mm
Anzahl der flammbeständigen Seiten
4
Isoliermaterial
Glasfaser-Leichtbeton
Ummantelung
ohne
Farbe
grau
ETIM-Klasse
Endstück für Brandschutzkanal

Artikelinformationen vom Hersteller

Oft zusammen gekauft