Zajadacz EVI

OBO BSKH09-T0521 T-Stück f.BSKH09-K0521

50x210 grau 7215641

Artikel
6917738
Lieferanten Typ
BSKH09-T0521
Lieferanten Artikel
7215641

Beschreibung

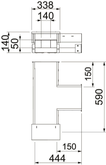
T-Stück für Brandschutzkanal PYROLINE® Con S, Typ BSKH09-K0521 bestehend aus wasser- und frostbeständigen Glasfaserleichtbeton zur Herstellung von T-Abzweigungen im Kanalverlauf. Fertig montierte Verbindungsbeschläge sorgen für eine schnelle Montage vor Ort, lose aufgelegte Deckel für eine schnelle Revision und Nachbelegung. Inklusive Verbindungsschrauben und Dichtungsstreifen.

Hersteller-Seite

Artikeleigenschaften

Zolltarif-Nr.
68109100
ISO 50001 Zertifizierung
ISO 14001 Zertifizierung
Ursprungs-Land
DE
WEEE-Land
DE
WEEE-Nummer
64419409
Außenhöhe
140 mm
Außenbreite
338 mm
Innenhöhe
50 mm
Innenbreite
210 mm
Anzahl der flammbeständigen Seiten
4
Isoliermaterial
Glasfaser-Leichtbeton
Ummantelung
ohne
Farbe
grau
Trennwände möglich
ETIM-Klasse
T-Stück für Brandschutzkanal

Artikelinformationen vom Hersteller

Oft zusammen gekauft