Zajadacz EVI

OBO BSKP03-K0406 Brandschutzkanal I30 f.

Photovoltaik 1000x40x60 grau 7214701

Artikel
6917722
Lieferanten Typ
BSKP03-K0406
Lieferanten Artikel
7214701

Beschreibung

Brandschutzkanal

Brandschutzkanal aus wasser- und frostbeständigen Glasfaserleichtbeton der Baustoffklasse A1 gemäß EN 13501-1 zur brandsicheren Verlegung von Photovoltaikleitungen in und außerhalb von Gebäuden. Die Anforderungen an den Berührungsschutz für Einsatzkräfte werden erfüllt. Klassifizierung I30 als I-Kanal gemäß DIN 4102 Teil 11 zum Schutz von Flucht- und Rettungswegen. Montage des Kanals direkt an Wänden oder unter Decken und auf Tragsystemen. Inklusive Senkkopfschrauben und Dichtungsstreifen.

Hersteller-Seite

Artikeleigenschaften

Zolltarif-Nr.
68109100
ISO 50001 Zertifizierung
ISO 14001 Zertifizierung
Ursprungs-Land
DE
WEEE-Land
DE
WEEE-Nummer
64419409
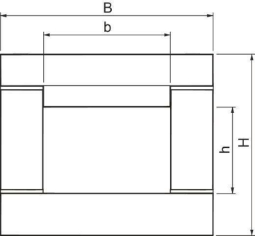
Außenhöhe
85 mm
Außenbreite
100 mm
Länge
1000 mm
Nutzbarer Querschnitt
2400 qmm
Anzahl der flammbeständigen Seiten
4
Isoliermaterial
Glasfaser-Leichtbeton
Intumeszierende Innenauskleidung
Ummantelung
ohne
Farbe
grau
Trennwände möglich
Deckelbefestigung
verschrauben
ETIM-Klasse
Brandschutzkanal

Artikelinformationen vom Hersteller

Zubehör

Oft zusammen gekauft