Zajadacz EVI

OBO BSK-E120511 Endstück f.BSK I120/E90

50x110 grau 7215272

Artikel
2940525
Lieferanten Typ
BSKD12-E0511
Lieferanten Artikel
7215272

Beschreibung

Endstück für Brandschutzkanal PYROLINE® Con D BSK I120/E90 bestehend aus wasser- und frostbeständigen Glasfaserleichtbeton zum Verschluss der Kanalenden. Inklusive Senkkopfschrauben und aufgeklebten Dichtungsstreifen.

Hersteller-Seite

Artikeleigenschaften

Zolltarif-Nr.
68109100
ISO 50001 Zertifizierung
ISO 14001 Zertifizierung
Ursprungs-Land
DE
WEEE-Land
DE
WEEE-Nummer
64419409
Ausführung
links/rechts
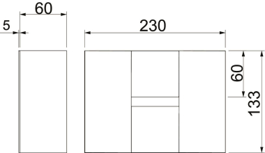
Außenhöhe
133 mm
Außenbreite
230 mm
Anzahl der flammbeständigen Seiten
3
Isoliermaterial
Glasfaser-Leichtbeton
Ummantelung
ohne
Farbe
grau
ETIM-Klasse
Endstück für Brandschutzkanal

Artikelinformationen vom Hersteller

Oft zusammen gekauft