Zajadacz EVI

OBO AIKF IEA 35075 Inneneck-Blinddeckel

f.Aufboden-Kanal St FS 7405012

Artikel
771139
Lieferanten Typ
AIKF IEA 35075
Lieferanten Artikel
7405012

Beschreibung

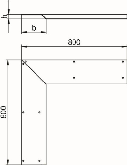
Blinddeckel 2-teilig zum Abdecken des Innenecks eines Aufflurkanals, passend zu den Kanalunterteilen AIK/U inkl. 10 Befestigungsschrauben. Der Kanaldeckel wird in den Al-Seitenprofilen des Kanalunterteils festgeschraubt. Die Deckelschräge überragt das Kanalunterteil im 45°-Winkel.

Hersteller-Seite

Artikeleigenschaften

Zolltarif-Nr.
73089059
Ursprungs-Land
HU
WEEE-Land
DE
WEEE-Nummer
64419409
Mit Überstand
Breite
350 mm
Höhe
75 mm
Länge
800 mm
Mit Anschlussöffnung
Werkstoff
Stahl
ETIM-Klasse
Deckel Aufboden-Gerätekanal

Artikelinformationen vom Hersteller