Zajadacz EVI

OBO DUG 350-3 6 Montagedeckel 350-2/3 f.

GES6 383x383x4 St FS 7400509

Artikel
2957731
Lieferanten Typ
DUG 350-3 6
Lieferanten Artikel
7400509

Beschreibung

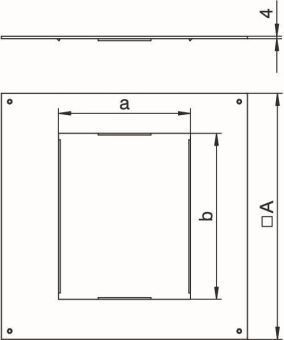
Montagedeckel 350-3 für GES6

Montagedeckel für Unterflur-Zug- und Abzweigdosen vom Typ UZD350-3 zum Einbau einer Einbaueinheit der Nenngröße 6. Einbauöffnung 3 mm vertieft zum nachträglichen Blindverschluss mit Deckelblindplatte.

Hersteller-Seite

Artikeleigenschaften

Zolltarif-Nr.
73089059
ISO 50001 Zertifizierung
ISO 14001 Zertifizierung
Ursprungs-Land
HU
WEEE-Land
DE
WEEE-Nummer
64419409
Nenngröße
350 mm
Breite
383 mm
Länge
383 mm
Montageöffnung
rechteckig
Abdeckung Montageöffnung
Bodenpflege
trocken
Materialstärke
4 mm
Werkstoff
Stahl
ETIM-Klasse
Montagedeckel für Zugdose

Artikelinformationen vom Hersteller

Oft zusammen gekauft