Zajadacz EVI

OBO FOOP3SRW Oberteil f.Flachwinkel

steigend Pult 80x300mm St rws 6287060

Artikel
1957026
Lieferanten Typ
FOOP3RW
Lieferanten Artikel
6287060

Beschreibung

Oberteil zum Verschließen der Flachwinkel.

Hersteller-Seite

Artikeleigenschaften

Zolltarif-Nr.
73089059
Ursprungs-Land
DE
WEEE-Land
DE
WEEE-Nummer
64419409
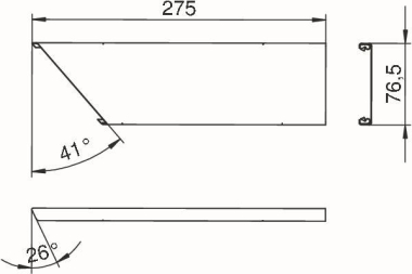
Breite
76,5 mm
Montageart
innenliegend
Ausführung
glatt
Werkstoff
Stahl
Halogenfrei
Farbe
weiß
RAL-Nummer
9010
Mit Schutzfolie
Schutzart (IP)
IP30
Schlagfestigkeit
IK10
ETIM-Klasse
Oberteil für Flachwinkel Geräteeinbaukanal

Artikelinformationen vom Hersteller