Zajadacz EVI

OBO PLM EC 0810 FS Außeneck

m.Brandschutzgewebe 320x100x320 7218042

Artikel
6974051
Lieferanten Typ
PLM EC 0810 FS
Lieferanten Artikel
7218042

Beschreibung

Außeneck

Außeneck mit intumeszierendem Brandschutzgewebe für Installationskanal PYROLINE® Rapid PLM. Geeignet für die direkte Wand- und Deckenmontage, Montage unterhalb von Systemböden und auf Tragsystemen. Werkzeuglose Stoßstellenmontage mit Stoßstellenverbinder PLM SI. Der Deckel wird werkzeuglos aufgerastet und ermöglicht eine schnelle Revision und Nachbelegung. Deckelüberstand ermöglicht versetzte Deckelmontage für durchgängigen Potentialausgleich der gesamten Kanalstrecke.

Hersteller-Seite

Artikeleigenschaften

Zolltarif-Nr.
73089059
ISO 50001 Zertifizierung
ISO 14001 Zertifizierung
Ursprungs-Land
DE
WEEE-Land
DE
WEEE-Nummer
64419409
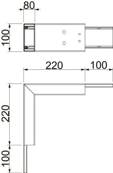
Winkel
90 °
Außenbreite
220 mm
Innenhöhe
80 mm
Innenbreite
100 mm
Anzahl der flammbeständigen Seiten
4
Ummantelung
Stahl
Oberflächenschutz
bandverzinkt
Farbe
sonstige
Trennwände möglich
Deckelbefestigung
sonstige
ETIM-Klasse
Außeneck für Brandschutzkanal

Artikelinformationen vom Hersteller

Oft zusammen gekauft