Zajadacz EVI

OBO PLM IC 0410 FS Inneneck

m.Brandschutzgewebe 290x100x290 7218050

Artikel
6974055
Lieferanten Typ
PLM IC 0410 FS
Lieferanten Artikel
7218050

Beschreibung

Inneneck

Inneneck mit intumeszierendem Brandschutzgewebe für Installationskanal PYROLINE® Rapid PLM. Geeignet für die direkte Wand- und Deckenmontage, Montage unterhalb von Systemböden und auf Tragsystemen. Werkzeuglose Stoßstellenmontage mit Stoßstellenverbinder PLM SI. Der Deckel wird werkzeuglos aufgerastet und ermöglicht eine schnelle Revision und Nachbelegung. Deckelüberstand ermöglicht versetzte Deckelmontage für durchgängigen Potentialausgleich der gesamten Kanalstrecke.

Hersteller-Seite

Artikeleigenschaften

Zolltarif-Nr.
73089059
ISO 50001 Zertifizierung
ISO 14001 Zertifizierung
Ursprungs-Land
DE
WEEE-Land
DE
WEEE-Nummer
64419409
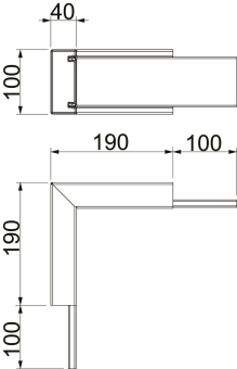
Winkel
90 °
Außenbreite
190 mm
Innenhöhe
40 mm
Innenbreite
100 mm
Anzahl der flammbeständigen Seiten
4
Ummantelung
Stahl
Oberflächenschutz
bandverzinkt
Farbe
sonstige
Trennwände möglich
Deckelbefestigung
sonstige
ETIM-Klasse
Inneneck für Brandschutzkanal

Artikelinformationen vom Hersteller

Oft zusammen gekauft