Zajadacz EVI

OBO PLM TB 1220 FS T-Abzweig

m.Brandschutzgewebe 600x400x120 7218082

Artikel
6974071
Lieferanten Typ
PLM TB 1220 FS
Lieferanten Artikel
7218082

Beschreibung

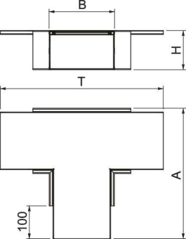
T-Abzweig mit intumeszierendem Brandschutzgewebe für Installationskanal PYROLINE® Rapid PLM. Geeignet für die direkte Wand- und Deckenmontage, Montage unterhalb von Systemböden und auf Tragsystemen. Werkzeuglose Stoßstellenmontage mit Stoßstellenverbinder PLM SI. Der Deckel wird werkzeuglos aufgerastet und ermöglicht eine schnelle Revision und Nachbelegung. Deckelüberstand ermöglicht versetzte Deckelmontage für durchgängigen Potentialausgleich der gesamten Kanalstrecke. Kein elektrischer Funktionserhalt nach DIN 4102 Teil 12!

Hersteller-Seite

Artikeleigenschaften

Zolltarif-Nr.
73089059
ISO 50001 Zertifizierung
ISO 14001 Zertifizierung
Ursprungs-Land
DE
WEEE-Land
DE
WEEE-Nummer
64419409
Außenhöhe
120 mm
Außenbreite
200 mm
Anzahl der flammbeständigen Seiten
4
Ummantelung
Stahl
Oberflächenschutz
bandverzinkt
Farbe
sonstige
Trennwände möglich
ETIM-Klasse
T-Stück für Brandschutzkanal

Artikelinformationen vom Hersteller

Oft zusammen gekauft