Zajadacz EVI

OBO PLM WC 0410 FS Wandanschlusskragen

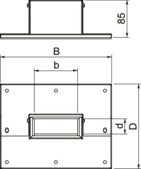
3-u.4-seitig 85x253x193 7218122

Artikel
6974091
Lieferanten Typ
PLM WC 0410 FS
Lieferanten Artikel
7218122

Beschreibung

Wandanschlusskragen 4-seitig

Wandanschlusskragen, 4-seitig mit integrierter Dichtung für Installationskanal PYROLINE® Rapid PLM. Zur Montage im Bereich von Wand- und Deckenanschlüssen sowie Wanddurchführungen. Auch als 3-seitiger Wandanschlusskragen bei direkter Wand- oder Deckenmontage des Kanals einsetzbar.

Hersteller-Seite

Artikeleigenschaften

Zolltarif-Nr.
73089059
ISO 50001 Zertifizierung
ISO 14001 Zertifizierung
Ursprungs-Land
DE
WEEE-Land
DE
WEEE-Nummer
64419409
Art des Zubehörs/Ersatzteils
Wandanschlusskragen
Zubehör
Ersatzteil
ETIM-Klasse
Zubehör/Ersatzteile für Brandschutzkanal

Artikelinformationen vom Hersteller

Oft zusammen gekauft