Zajadacz EVI

OBO PMB 150-4 A2 Brandschutzbox

vierseitig m.intumeszierenden 7204136

Artikel
6915429
Lieferanten Typ
PMB 150-4 A2
Lieferanten Artikel
7204136

Beschreibung

Brandschutzbox als Abschottungssystem aus zweiteiligem Edelstahlgehäuse mit intumeszierenden Brandschutzeinlagen. Einsetzbar in Wänden und Decken. Schnelle Montage durch wiederlösbare Magic-Verbindung. Innenraum vollständig mit Installationen belegbar. Anwendung im Innenbereich. Verschluss der Restöffnungen mit Brandschutzschaum PYROSIT® NG, besonders einfach bei schwierigen Geometrien. CE-gekennzeichnetes Bauprodukt mit allgemeiner Bauartgenehmigung. Feuerwiderstandsklasse EI90 (feuerbeständig). Inklusive Graphitstreifen.

Hersteller-Seite

Artikeleigenschaften

Zolltarif-Nr.
39211310
Ursprungs-Land
DE
WEEE-Land
DE
WEEE-Nummer
64419409
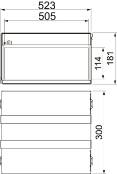
Ausführung
Kabelbox
Form
viereckig
Außenhöhe
181 mm
Außenbreite
523 mm
Innenhöhe
114 mm
Innenbreite
505 mm
Plattenstärke/Produktlänge
300 mm
Zubehör erforderlich
ETIM-Klasse
Brandabschottung

Artikelinformationen vom Hersteller

Zubehör

Oft zusammen gekauft