Zajadacz EVI

OBO WDK F100130RW Flachwinkel

300x130x100 9010 6161775

Artikel
6915406
Lieferanten Typ
WDK F100130RW
Lieferanten Artikel
6161775

Beschreibung

Flachwinkel zur Richtungsänderung der WDK-Kanäle.

Hersteller-Seite

Artikeleigenschaften

Zolltarif-Nr.
39259020
Ursprungs-Land
DE
WEEE-Land
DE
WEEE-Nummer
64419409
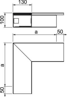
Höhe
100 mm
Breite
130 mm
Ausführung
Unterteil und Oberteil
Winkel
90 - 90 °
Werkstoff
Kunststoff
Werkstoffgüte
Polyvinylchlorid (PVC)
Halogenfrei
Antibakterielle Behandlung
Geeignet für Funktionserhalt
Farbe
weiß
RAL-Nummer
9010
Mit Schutzfolie
Befestigungsart
Bodenlochung
Schutzart (IP)
IP30
Schlagfestigkeit
IK04
Einsatztemperatur
-5 - 60 °C
ETIM-Klasse
Flachwinkel für Leitungsführungskanal

Artikelinformationen vom Hersteller