Zajadacz EVI

Unex Kreuzung 85x300mm R300 67308-04

lichtgrau RAL7035 U23X

Artikel
6003764
Lieferanten Typ
67308-04
Lieferanten Artikel
67308-04

Beschreibung

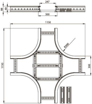
Element zur Ausführung von Kreuzungen zwischen zwei Kabelleiterabschnitten mit einem Krümmungsradius von 300 mm. Stoßstellenverbinder sind zur einfachen Montage im Lieferumfang enthalten. Isolierendes Material. Farbe: Lichtgrau RAL 7035

Hersteller-Seite

Artikeleigenschaften

Zolltarif-Nr.
39259080
Ursprungs-Land
ES
Ausführung des Seitenholms
Profil (offen)
Ausführung der Sprosse
Profil gelocht
Geeignet für Kabelleiterhöhe
85 mm
Geeignet für Kabelleiterbreite
300 mm
Kabelleiter-Abgangsbreite
300 mm
Innenradius
300 mm
Geeignet für Funktionserhalt
Werkstoff
Kunststoff
Werkstoffgüte
Polyvinylchlorid (PVC)
Oberflächenschutz
sonstige
Einsatztemperatur
-20 - 60 °C
Farbe
grau
RAL-Nummer
7035
ETIM-Klasse
Kreuzstück für Kabelleiter

Zubehör

Oft zusammen gekauft